Why build a Granny Annexe?
A granny annexe is a self-contained living space that is attached to or located within the grounds of a family home. These types of constructions are becoming increasingly popular in the UK due to the flexibility they provide.
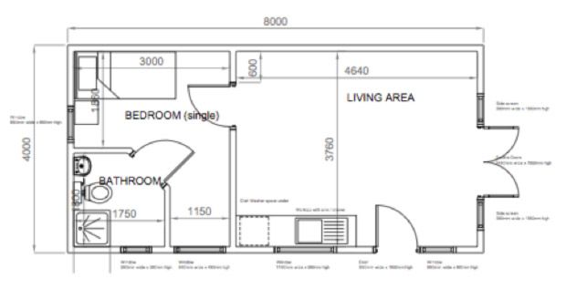
The granny annexes that are built by us are suitable for a wide range of customers for various reasons. For example, some homeowners may require more living space for when guests visit or to provide independent living for older family members. In such cases, a granny annexe can be an excellent solution, as it allows family members to stay close to home while providing a sense of privacy and independence.
The granny annexes are all constructed using a timber frame, which provides several benefits. Timber is a renewable resource that is both durable and environmentally friendly. Additionally, it provides excellent insulation, which makes the annexes suitable for year-round living. The insulation also makes the annexes more energy efficient, which can help to reduce heating costs and lower the carbon footprint of the homeowner.
Each bespoke made granny annexe is built to suit the customer’s specific needs and lifestyle. We can provide advice on building controls and planning permission to ensure that the process is as straightforward as possible.
Overall, a granny annexe is an excellent option for homeowners who need more living space or who want to provide independent living for older family members.
Nordic Room’s timber frame constructions are both cost-effective and attractive, and they provide a comfortable and energy-efficient living space. With tailored designs and expert advice, the process of building a granny annexe has never been simpler.
Building a Granny Annexe
Nothing we do is pre-fabricated and we will construct your granny annexe or guest room to suit your specific requirements. We are a UK based company (with Scandinavian roots) and our warehouse is in Byfleet so our expert carpenters, and office team are always on hand to support you.
Nordic Room can oversee all aspects of your project from: the design, help with planning, the build of your granny annexe, preparing the cabin and working alongside electricians/plumbers and help obtaining a buildings control certificate.
Cost Consideration for your Granny Annexe
When it comes to budgeting, these are the elements you would have to consider:
- Planning permission
- Foundation
- Kit cost for house
- Build cost
- Services to house
- Internal fixtures and fittings and decorating
Read more in our Case Studies
Our Buildings
Recent Projects
Music Room and Home Office
Music Room and Home Office This Nordic Room, [...]
Garden Home Office with Fire Cladding
Home Office with Fire Cladding Introduction: This client [...]
Standard Nordic Room as Home Office
Standard Nordic Room This Nordic Room was built [...]









